
ایچ ڈی کی قسم یورپی لوسٹ الیکٹرک سنگل گرڈر ہیڈ سر کرین
یورپی سنگل گرڈر اوور ہیڈ کرین فیم اور ڈیین معیار کے ساتھ سخت مطابق میں ڈیزائن اور مینوفیکچرنگ کمپیکٹ لفٹنگ مشینری ہے، جس میں اعلی درجے کی ٹیکنالوجی اور خوبصورت ڈیزائن کے ساتھ. عام قسم اور معطلی کی قسم میں تقسیم کیا جاتا ہے، یورپی معیاری برقی سامان کے استعمال کی حمایت کرتا ہے، ورکشاپ اور گودام کے سامان کی ہینڈلنگ، بڑے حصے صحت سے متعلق اسمبلی اور دوسری جگہوں کے لئے مناسب.
ایچ ڈی کی قسم یورپی لوسٹ الیکٹرک سنگل گرڈر ہیڈ سر کرین
مختصر تفصیل:
یورپی سنگل گرڈر اوور ہیڈ کرین فیم اور ڈیین معیار کے ساتھ سخت مطابق میں ڈیزائن اور مینوفیکچرنگ کمپیکٹ لفٹنگ مشینری ہے، جس میں اعلی درجے کی ٹیکنالوجی اور خوبصورت ڈیزائن کے ساتھ. عام قسم اور معطلی کی قسم میں تقسیم کیا جاتا ہے، یورپی معیاری برقی سامان کے استعمال کی حمایت کرتا ہے، ورکشاپ اور گودام کے سامان کی ہینڈلنگ، بڑے حصے صحت سے متعلق اسمبلی اور دوسری جگہوں کے لئے مناسب.

اس میں بڑے پیمانے پر مشینری کی تیاری، دھاتیں، پٹرولیم، پٹھان، بندرگاہ، ریلوے، سول ایوی ایشن، خوراک، کاغذ سازی، تعمیر، الیکٹرانکس کی صنعت ورکشاپ، گودام اور دیگر معدنیات سے نمٹنے کے حالات میں بڑے پیمانے پر استعمال کیا جا سکتا ہے. مواد کی ہینڈلنگ پر لاگو ہوتا ہے جو عین مطابق پوزیشننگ، بڑے اجزاء کو درست اسمبلی کی صورت حال کی ضرورت ہوتی ہے.

تفصیلی تصاویر:

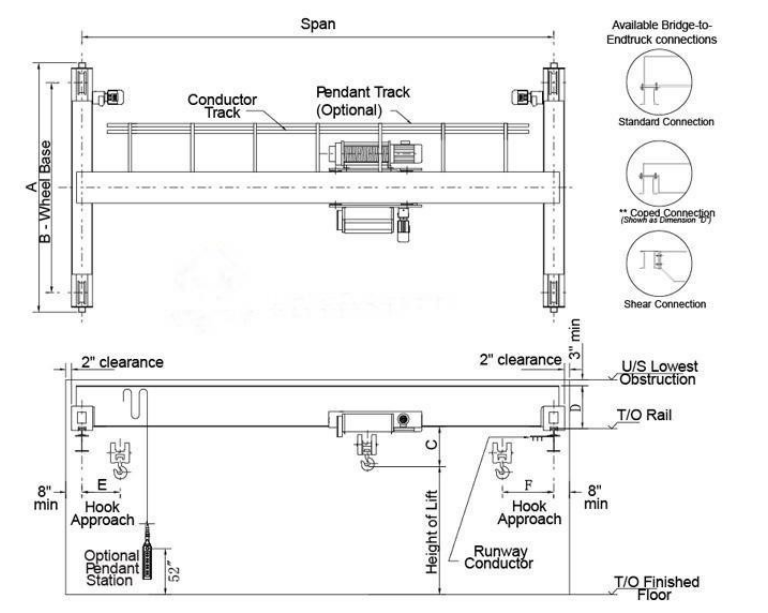
خاکہ ڈرائنگ:

تکنیکی پیرامیٹرز:
اسپین | م | 7.5 | 10.5 | 13.5 | 16.5 | 19.5 | 22.5 | 25.5 |
صلاحیت | ٹی | 1 ~ 12.5t | ||||||
کل وزن | کلو | 1781 ~ 12086 | ||||||
ٹریلی وزن | کلو | 405 ~ 740 | ||||||
زیادہ سے زیادہ. وہیل لوڈ | kn | 13.5 ~ 90.94 | ||||||
سفر ریل | P24 ~ P43 | |||||||
لفٹنگ کی رفتار | م / منٹ | 0.8 / 5 | 0.8 / 5 | 0.8 / 5 | 0.8 / 5 | 0.8 / 5 | 0.8 / 5 | 0.8 / 5 |
لفٹ اونچائی | م | ≥ 6 | ≥ 6 | ≥ 6 | ≥ 6 | ≥ 6 | ≥ 6 | ≥ 6 |
کل موٹر طاقت | ک | 4.31 | 4.31 | 4.31 | 4.31 | 4.67 | 4.67 | 4.67 |
کرین کی رفتار | م / منٹ | 3-30 | 3-30 | 3-30 | 3-30 | 3-30 | 3-30 | 3-30 |
ٹریلی کی رفتار | م / منٹ | 2-20 | 2-20 | 2-20 | 2-20 | 2-20 | 2-20 | 2-20 |
ورکنگ ڈیوٹی | M5 / A5 | |||||||


English
한국어
Deutsch
magyar
Indonesia
Srbija jezik (latinica)
Kreyòl Ayisyen
Malti
Eesti
Italiano
فارسی
Português





